Casa indipendente in vendita

Bellaria-Igea Marina, Via balbi - Bellaria
€ 395.000
6 locali 6 locali
224 Mq 224 Mq
2 bagni 2 bagni

Casa indipendente in vendita

Bellaria-Igea Marina, Via balbi - Bellaria

Descrizione annuncio

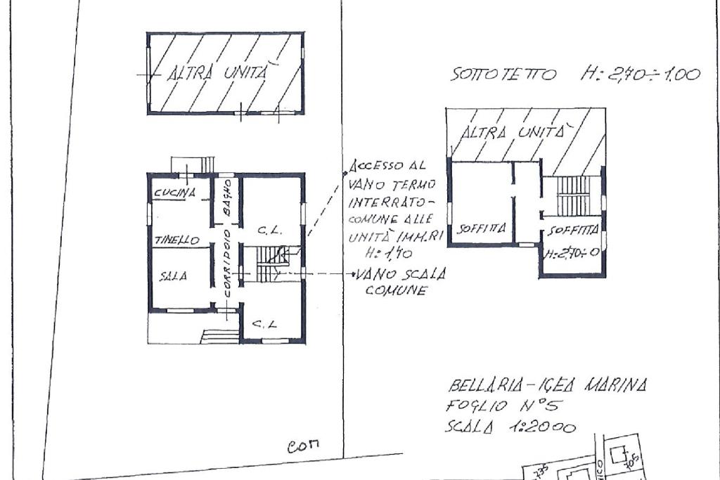
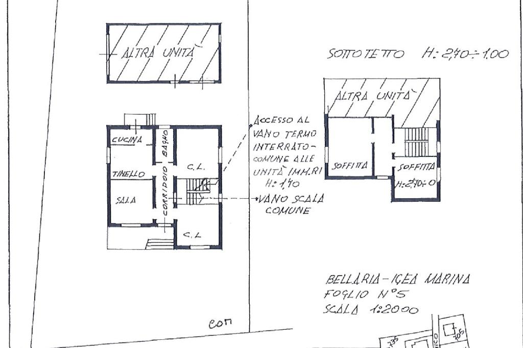
ZONA CAGNONA:

In una zona tranquilla e residenziale e vicino al mare, soluzione indipendente composta da due appartamenti di generose metrature.

Dall'ingresso indipendente accediamo alla corte privata perimetrale alla soluzione, dove è presente un box doppio di proprietà sul retro.

Dalla veranda accediamo all'appartamento al piano rialzato, composto da tre camere matrimoniali finestrate, un disimpegno che ci conduce alla zona giorno, che comprende salotto e cucinotto separato abitabile dove troviamo un secondo accesso e il bagno ristrutturato finestrato con vasca.

La scala interna ci conduce al primo piano troviamo il secondo appartamento, composto da due camere da letto matrimoniali finestrate, un disimpegno, un soggiorno di ampie metrature, il cucinotto separato, il bagno ristrutturato finestrato con box doccia e un balcone abitabile con tenda da sole.

Al secondo piano troviamo la soffitta grezza composta da tre vani.

La soluzione presenta infissi in legno monovetro con tapparelle, pavimentazione in ceramica e moquette e stufa a pellet al primo piano.

Le generose metrature e la zona tranquilla la rendono ottima come casa residenziale per una famiglia numerosa.

APE in produzione

Mostra tutto

Nelle vicinanze

Trasporto pubblico Trasporto pubblico
stazione di Bellaria
stazione di Bellaria
630 m
Gatteo a Mare
Gatteo a Mare
2,6 Km
49 Panzini Sebrenico
49 Panzini Sebrenico
160 m
Trasporto pubblico
190 m
Ricariche auto elettriche Ricariche auto elettriche
Hotel Mon Pays Bellaria
860 m
Centro Commerciale Romagna Est Iper
2,1 Km
Hotel Capitol
2,5 Km
Scuole Scuole
Scuole
240 m
Scuola Elementare Ferrarin
1,5 Km
Farmacia Farmacia
Farmacia Tonini
450 m
ParaFarmacia
830 m
Farmacia Olivi
880 m
Farmacia Centrale
1,3 Km
Iper Farma
2,0 Km
Supermercati Supermercati
Coop
630 m
Svelto A&O
1,3 Km
Supermercati
1,5 Km
D-piu
1,6 Km
Iper
2,1 Km
Negozi Negozi
Bottega Balducci
360 m
Casa del formaggio e salumi
1,1 Km
Ollipois
1,2 Km
Creme Caramel
1,3 Km
Poseidonia
1,3 Km
Bar Bar
Bar Delfino
350 m
Bar Nenè
480 m
Beach Bar
1,0 Km
Bar
1,3 Km
Tequila
1,4 Km
Ristoranti Ristoranti
Pacha Mama
170 m
Taverna da Bruno
200 m
L'Isola che non c'è
290 m
Piada e cassoni
320 m
La Tramontana
370 m
Mostra tutto

Caratteristiche

Rif.:
60912994
Piano:
Su più livelli di 3
Totale piani:
3
Box:
1
Balconi:
1
Camere da letto:
5
Mostra tutto
Prezzo Prezzo
€ 395.000
Rata mutuo Rata mutuo
€ 1.864 / mese
Spese annue Spese annue
€ 0
Proponi il tuo prezzoProponi il tuo prezzo
Immobile valutato con T·Valuta

Classe Energetica

Questo immobile è esente da classe energetica
Anno di costruzione:
1959
Riscaldamento:
Autonomo
Tipo impianto:
A radiatori
Tipo alimentazione:
Metano

Ti interessa visionare l'immobile?

Fissa un appuntamento  Fissa un appuntamento

Richiedi informazioni

Clicca su Leggi per aprire l'informativa
* Questi campi sono obbligatori

Calcola il tuo mutuo

Semplice e senza impegno
Anticipo

( % )
Mutuo

( % )

pochi semplici passi

inserisci i tuoi dati
Questionario completato
Grazie per aver richiesto un appuntamento senza impegno con un nostro Consulente del Credito e Assicurativo.

Hai inserito correttamente tutti i dati necessari e a breve riceverai una e-mail con un link da convalidare per inviare i tuoi dati.
Affiliato
Studio Bellaria Srlcr
Via Mar Ionio, 21 47814 Bellaria-Igea Marina (RN)
Via Mar Ionio, 21 47814 Bellaria-Igea Marina (RN)
Zona: Bellaria
Mostra su mappa
Orari: Orario apertura: dal lunedì' al venerdì 9.00-13.00/15.00-19.00. sabato 9.00-13.00
Affiliato
Studio Bellaria Srlcr
Via Mar Ionio, 21 47814 Bellaria-Igea Marina (RN)

2025 Tecnocasa Franchising S.p.A. - P. IVA 08365160152 - Via Monte Bianco 60/A 20089 Rozzano (MI). Ogni agenzia ha un proprio titolare ed è autonoma. Privacy policy | Policy utilizzo | Cookie policy