Quadrilocale in vendita

Bellaria-Igea Marina, Via nicolo' zeno - Bellaria
€ 319.000
4 locali 4 locali
153 Mq 153 Mq
2 bagni 2 bagni

Quadrilocale in vendita

Bellaria-Igea Marina, Via nicolo' zeno - Bellaria

Descrizione annuncio

ZONA CENTRO:

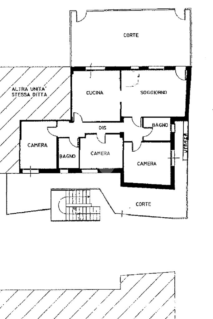
In una zona tranquilla, circondata dal verde e vicino al centro, ampio appartamento di circa 130 mq posto al piano terra con ingresso indipendente.

l'immobile offre un comodo accesso a un giardino privato, ideale per momenti di relax all'aperto. La proprietà, costruita nel 2006, si compone di quattro locali ben distribuiti: l ingresso si apre sulla zona giorno, composta da cucina abitabile con camino ventilato e un ampio soggiorno con un piccolo ripostiglio.

Un comodo disimpegno ci conduce nella zona notte, dove troviamo una camera da letto matrimoniale, una camera da letto doppia, una terza camera con affaccio su un secondo giardino sul retro e due bagni, entrambi finestrati serviti da box doccia.

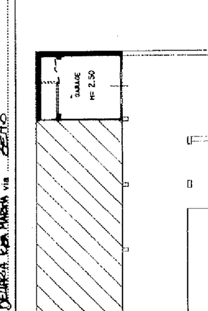
Completa la soluzione un box di circa 24 mq al piano interrato adibito a tavernetta.

Internamente la soluzione presenta infissi in alluminio doppio vetro, pavimentazione in ceramica, aria condizionata, aspirazione centralizzata e camino ventilato, esternamente è dotata di un pozzo nella corte e una veranda.

L indipendenza, la disposizione e la cura nel dettaglio rendono questa soluzione unica nel suo genere, ottima per una famiglia numerosa in cerca di tranuillità e comodità, con l opportunità di godersi meravigliosi momenti estivi all aperto nella generosa corte esterna, pavimentata recentemente.

APE in produzione.

Mostra tutto

Nelle vicinanze

Trasporto pubblico Trasporto pubblico
stazione di Bellaria
stazione di Bellaria
670 m
Gatteo a Mare
Gatteo a Mare
2,8 Km
48 Panzini - Plava
48 Panzini - Plava
520 m
49 Panzini Sebrenico
49 Panzini Sebrenico
540 m
Ricariche auto elettriche Ricariche auto elettriche
Hotel Mon Pays Bellaria
880 m
Centro Commerciale Romagna Est Iper
2,1 Km
Hotel Capitol
2,8 Km
Scuole Scuole
Scuole
220 m
Scuola Elementare Ferrarin
1,3 Km
Farmacia Farmacia
Farmacia Tonini
580 m
ParaFarmacia
760 m
Farmacia Olivi
810 m
Farmacia Centrale
1,6 Km
Iper Farma
2,1 Km
Supermercati Supermercati
Coop
260 m
Svelto A&O
1,6 Km
Supermercati
1,7 Km
D-piu
1,7 Km
Iper
2,1 Km
Negozi Negozi
Bottega Balducci
500 m
Casa del formaggio e salumi
950 m
Ollipois
1,5 Km
Poseidonia
1,6 Km
Creme Caramel
1,6 Km
Bar Bar
Bar Nenè
700 m
Bar Delfino
710 m
Beach Bar
1,0 Km
Bar
1,5 Km
ristorantino
1,7 Km
Ristoranti Ristoranti
L'Isola che non c'è
500 m
La Tramontana
510 m
Pacha Mama
520 m
Pizzeria del bosco
530 m
Taverna da Bruno
540 m
Mostra tutto

Caratteristiche

Rif.:
61175863
Piano:
Terra con giardino di 1
Totale piani:
1
Box:
1
Camere da letto:
3
Arredamento:
Assente
Mostra tutto
Prezzo Prezzo
€ 319.000
Rata mutuo Rata mutuo
€ 1.490 / mese
Spese annue Spese annue
€ 800
Proponi il tuo prezzoProponi il tuo prezzo

Classe Energetica

D
D
D
D
D
D
D
D
D
EP globale non rinnovabile:
187.51 kW h/m² anno
EP invernale del fabbricato:
EP estiva del fabbricato:
Anno di costruzione:
2006
Riscaldamento:
Autonomo
Tipo impianto:
A radiatori
Tipo alimentazione:
Metano

Ti interessa visionare l'immobile?

Fissa un appuntamento  Fissa un appuntamento

Richiedi informazioni

Clicca su Leggi per aprire l'informativa
* Questi campi sono obbligatori

Calcola il tuo mutuo

Semplice e senza impegno
Anticipo

( % )
Mutuo

( % )

pochi semplici passi

inserisci i tuoi dati
Questionario completato
Grazie per aver richiesto un appuntamento senza impegno con un nostro Consulente del Credito e Assicurativo.

Hai inserito correttamente tutti i dati necessari e a breve riceverai una e-mail con un link da convalidare per inviare i tuoi dati.
Affiliato
Studio Bellaria Srlcr
Via Mar Ionio, 21 47814 Bellaria-Igea Marina (RN)
Via Mar Ionio, 21 47814 Bellaria-Igea Marina (RN)
Zona: Bellaria
Mostra su mappa
Orari: Orario apertura: dal lunedì' al venerdì 9.00-13.00/15.00-19.00. sabato 9.00-13.00
Affiliato
Studio Bellaria Srlcr
Via Mar Ionio, 21 47814 Bellaria-Igea Marina (RN)

2026 Tecnocasa Franchising S.p.A. - P. IVA 08365160152 - Via Monte Bianco 60/A 20089 Rozzano (MI). Ogni agenzia ha un proprio titolare ed è autonoma. Privacy policy | Policy utilizzo | Cookie policy