Trilocale in vendita

Bellaria-Igea Marina, Via Levante
€ 195.000
3 locali 3 locali
53 Mq 53 Mq
1 bagno 1 bagno

Trilocale in vendita

Bellaria-Igea Marina, Via Levante

Descrizione annuncio

ZONA MARE:

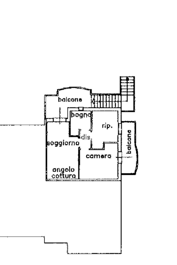
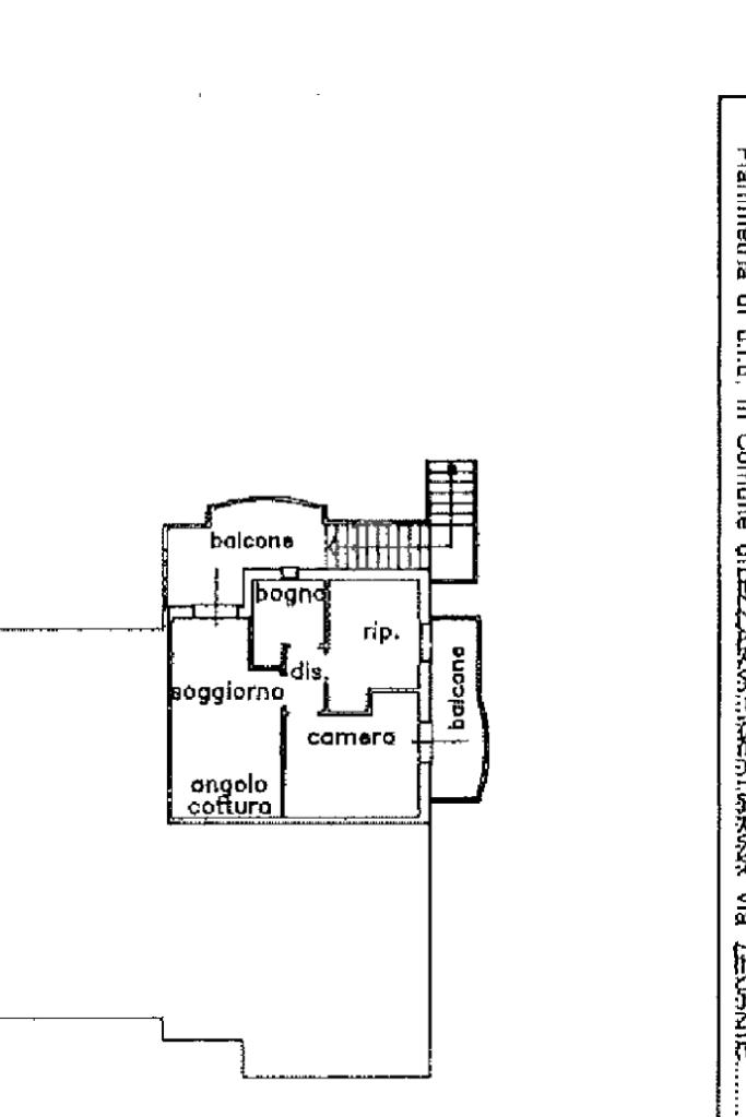
In una zona tranquilla e a circa 150 mt. dal mare, appartamento con ingresso indipendente al piano primo.

Dalla corte privata, una scala esterna ci conduce al balcone del primo piano, dove è situato l'ingresso dell' appartamento che si apre sulla zona giorno, composta da soggiorno con cucina a vista.

La zona notte comprende un disimpegno, una camera da letto matrimoniale con accesso sul secondo balcone da cui si vede il mare, una cameretta singola finestrata e un bagno finestrato con box doccia.

Completa la proprietà un posto auto riservato.

Internamente la soluzione presenta infissi in legno doppiovetro con zanzariere e inferriate, pavimentazione in ceramica e tenda da sole.

Questa soluzione è perfetta per gli amanti del mare e dell'indipendenza, i passi da fare per ritrovarsi sulla spiaggia sono veramente pochi.

Mostra tutto

Nelle vicinanze

Trasporto pubblico Trasporto pubblico
stazione di Bellaria
stazione di Bellaria
1,6 Km
Gatteo a Mare
Gatteo a Mare
1,6 Km
52 Panzini Savio
52 Panzini Savio
90 m
51 Panz- Pisino
51 Panz- Pisino
280 m
Ricariche auto elettriche Ricariche auto elettriche
Hotel Capitol
1,5 Km
Centro Commerciale Romagna Est Iper
1,6 Km
Hotel Mon Pays Bellaria
1,8 Km
Scuole Scuole
Scuole
570 m
Scuola Elementare Ferrarin
2,5 Km
Polo Scolastico Villamarina
2,5 Km
Farmacia Farmacia
Farmacia Centrale
280 m
Farmacia Tonini
1,4 Km
Iper Farma
1,4 Km
Farmacia
1,6 Km
ParaFarmacia
1,8 Km
Supermercati Supermercati
Svelto A&O
310 m
Supermercati
780 m
D-piu
800 m
Iper
1,5 Km
Conad City
1,5 Km
Negozi Negozi
Ollipois
200 m
Creme Caramel
260 m
Poseidonia
280 m
Bottega Balducci
1,3 Km
Conad
1,5 Km
Bar Bar
Bar
310 m
Tequila
400 m
Bar Delfino
1,1 Km
Bagno Walter
1,2 Km
Bar Nenè
1,4 Km
Ristoranti Ristoranti
Onda Blu
190 m
Luna Rossa
210 m
La Burasca
290 m
Il Caminetto
290 m
BAR RISTORANTE CENTRALE
300 m
Mostra tutto

Caratteristiche

Rif.:
61131581
Piano:
1 di 1 (Piano basso)
Posti auto:
1
Balconi:
2
Camere da letto:
2
Arredamento:
Assente
Mostra tutto
Prezzo Prezzo
€ 195.000
Rata mutuo Rata mutuo
€ 896 / mese
Proponi il tuo prezzoProponi il tuo prezzo

Classe Energetica

Questo immobile è esente da classe energetica
Anno di costruzione:
2000
Riscaldamento:
Autonomo
Tipo impianto:
A radiatori
Tipo alimentazione:
Metano

Ti interessa visionare l'immobile?

Fissa un appuntamento  Fissa un appuntamento

Richiedi informazioni

* Questi campi sono obbligatori

Calcola il tuo mutuo

Semplice e senza impegno
Anticipo

( % )
Mutuo

( % )

pochi semplici passi

inserisci i tuoi dati
Questionario completato
Grazie per aver richiesto un appuntamento senza impegno con un nostro Consulente del Credito e Assicurativo.

Hai inserito correttamente tutti i dati necessari e a breve riceverai una e-mail con un link da convalidare per inviare i tuoi dati.
Affiliato
Studio Bellaria Srlcr
Via Mar Ionio, 21 47814 Bellaria-Igea Marina (RN)
Via Mar Ionio, 21 47814 Bellaria-Igea Marina (RN)
Zona: Bellaria
Mostra su mappa
Orari: Orario apertura: dal lunedì' al venerdì 9.00-13.00/15.00-19.00. sabato 9.00-13.00
Affiliato
Studio Bellaria Srlcr
Via Mar Ionio, 21 47814 Bellaria-Igea Marina (RN)

2025 Tecnocasa Franchising S.p.A. - P. IVA 08365160152 - Via Monte Bianco 60/A 20089 Rozzano (MI). Ogni agenzia ha un proprio titolare ed è autonoma. Privacy policy | Policy utilizzo | Cookie policy